Ülemiste Educational Complex phase I
2017 / I prize/ 1st phase completed 2025/ 6070 m2
Authors: Gert Guriev, Kerstin Kivila, Jana Pärn, Siim Tiisvelt, Ilmar Valdur
Project team: 3+1 arhitektid (Jana Pärn, Siim Tiisvelt, Ilmar Valdur)
Interior architecture: Margit Teikari, Ahti Peetersoo, Tuuliki Prat
Landscape architecture: Maastikuarhitektuuribüroo TajuRuum (Margit Prükk, Edgar Kaare, Kärt Reedi, Hanna-Liisa Mõtus)
Constructor: Nordecon Betoon OÜ
Photo: Karl Kasepõld
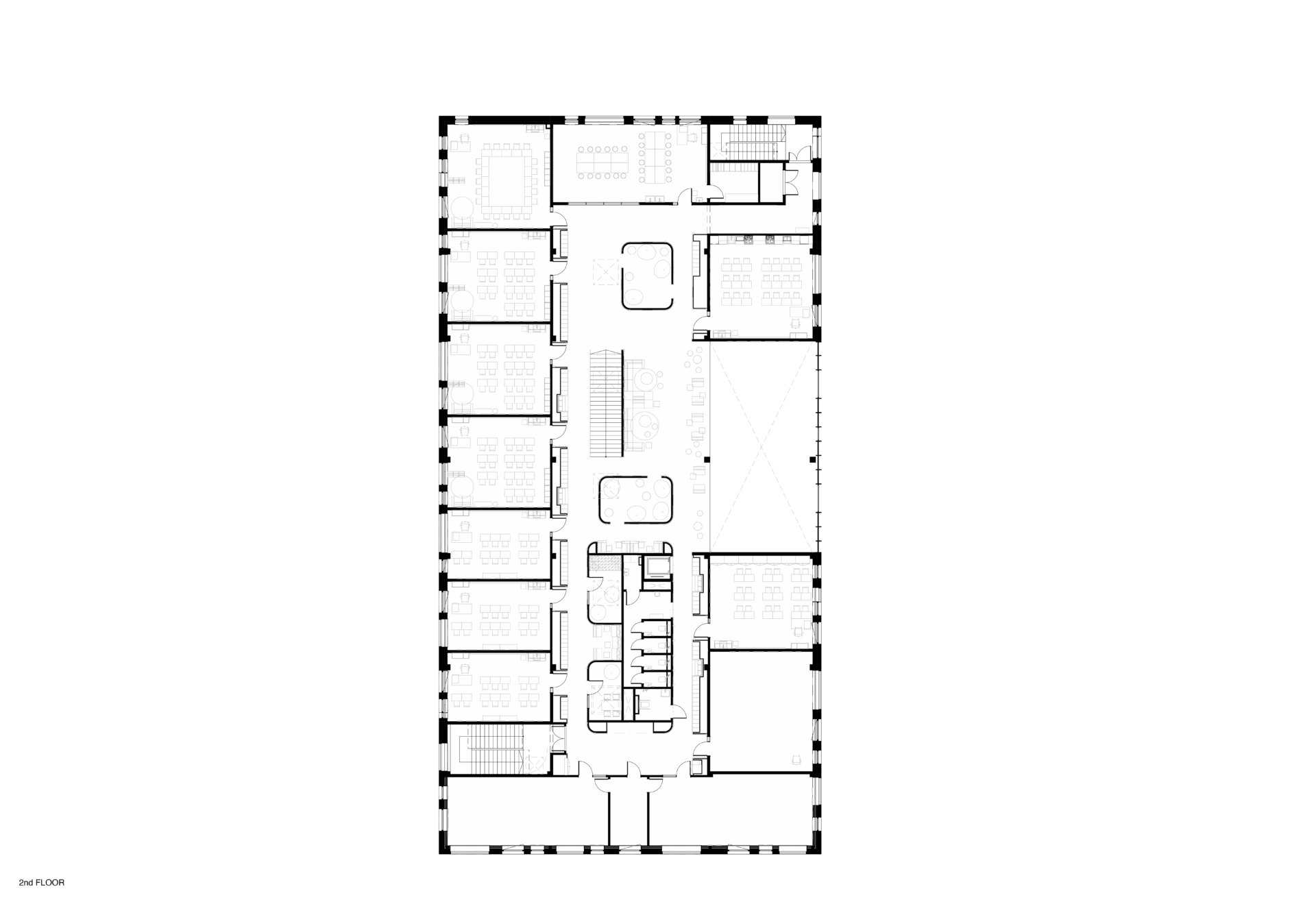
The Ülemiste educational complex, housing Tallinn International School, a kindergarten and a community centre, is designed to become the vibrant heart of Ülemiste City, which is currently dominated by office buildings. The low volume connected to street level and the accessible roof terrace blend naturally with the surrounding public space. Broad steps, safe play areas and a cantilevered upper volume create a complex that invites both children and adults to use the space actively. Together with the landscape design, the street-facing façade forms a people-centred pedestrian environment along Valukoja Street.
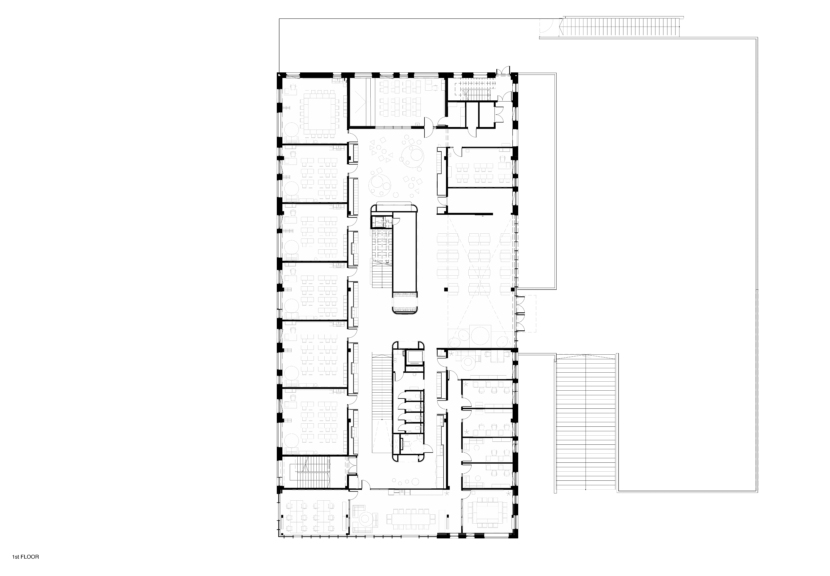
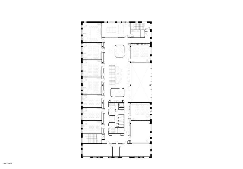
The institutions within the complex are planned to operate in symbiosis, offering flexible, spacious and contemporary environments for learning and leisure. The school’s main focal point is a multi-level atrium and roof terrace, which make it possible to conduct lessons and breaks outdoors. Kindergarten group rooms have direct access to the yard and are designed with children’s safety, comfort and independence in mind.
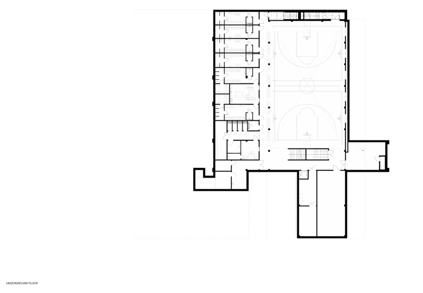
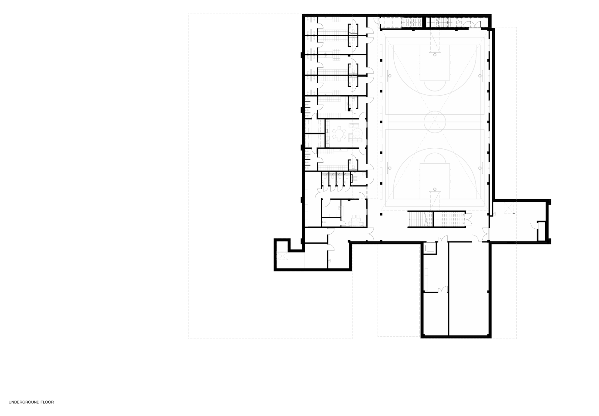
The community building’s sports hall, training room and hobby classrooms are available outside school hours also to people working in Ülemiste City. As a whole, the complex creates a contemporary, community-building environment that has been planned with phased future expansion in mind.
































