Small Animal Clinic of the Institute of Veterinary Medicine and Animal Sciences, Estonian University of Life Sciences
2025 / Architectural competition / II prize/ 9000 m2
Authors: Lisette Eriste, Gert Guriev, Markus Kaasik, Helin Kuldkepp, Siim Tiisvelt, Sofya Smirnova
The design for OSITI is based on the idea that contemporary architecture should not create an isolated object, but grow naturally out of its surroundings. The clinic responds to the existing campus and landscape, seeking a balance between visibility and sensitive integration. The stepped building form takes its cue from Valve Pormeister’s “Metsamaja”, helping to position the new clinic and preserve important views from the existing building. OSITI becomes a clear point of orientation and a symbolic beginning and end point for the campus.
A clear main axis organises the site into distinct but connected zones: clinic building, entrance square, parking and a series of characterful gardens. This axis frames the main movement routes and marks all key entrances, while the building mass along the road acts as a buffer for the gardens, outdoor areas and paths behind it.
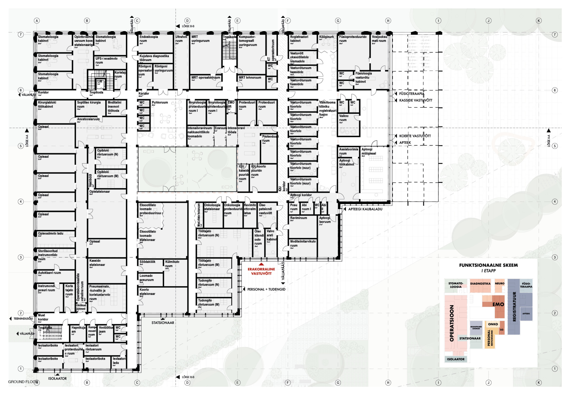
The architectural concept prioritises spatial flexibility and phased construction. A simple post–slab structural system, clear internal logistics and rational room layout make it possible to build the clinic step by step while keeping its characteristic stepped form. Functional units are arranged in a comfortable sequence for staff around a ground-level inner courtyard that brings daylight deep into the plan and offers pleasant views and places to pause.



















