The Centre of Estonian Rural Research and Knowledge (METK) new building and breeding center
2023 / Competition entry/ 7449 m2
Authors: Gert Guriev, Markus Kaasik, Helin Kuldkepp, Karl-Erik Miller, Jana Pärn, Ilmar Valdur
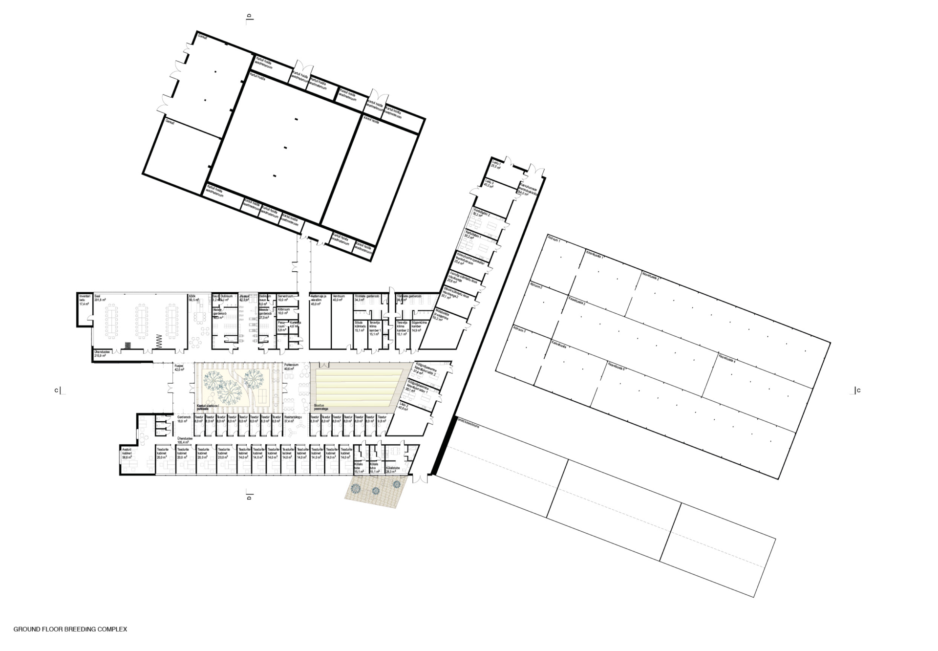
The competition entry NIPERNAADI proposes a new, cohesive science campus in Jõgeva, where the main building and breeding complex of the Estonian Crop Research Institute are brought together into a contemporary environment for work, research and learning. The architecture reinterprets the familiar gable roof in a contemporary way, creating a dialogue between the historic manor ensemble and the new buildings.
A diverse landscape is planned around the buildings – apple orchard, test fields, flower meadows and trial plots – which function at once as an extension of the workspace, a visible stage for science, and a recreational area for staff and visitors. Transparent greenhouses and green courtyards link indoor and outdoor spaces, bringing plant breeding directly into the everyday spatial experience.
The solution is designed as a nearly zero-energy building: timber is preferred in the load-bearing structure, roofs are prepared for solar panels, and natural ventilation together with thoughtful solar shading help reduce energy consumption. Clear logistics separate light traffic and heavy vehicles, ensuring a safe and well-accessible environment for all users.
















