Rae State Gymnasium
2020 /Competition entry/ 6800 m2
Category: Education, Public,Concept
Authors: Gert Guriev, Karin Harkmaa, Markus Kaasik, Siim Tanel Tõnisson, Jana Pärn, Anne Vingisar
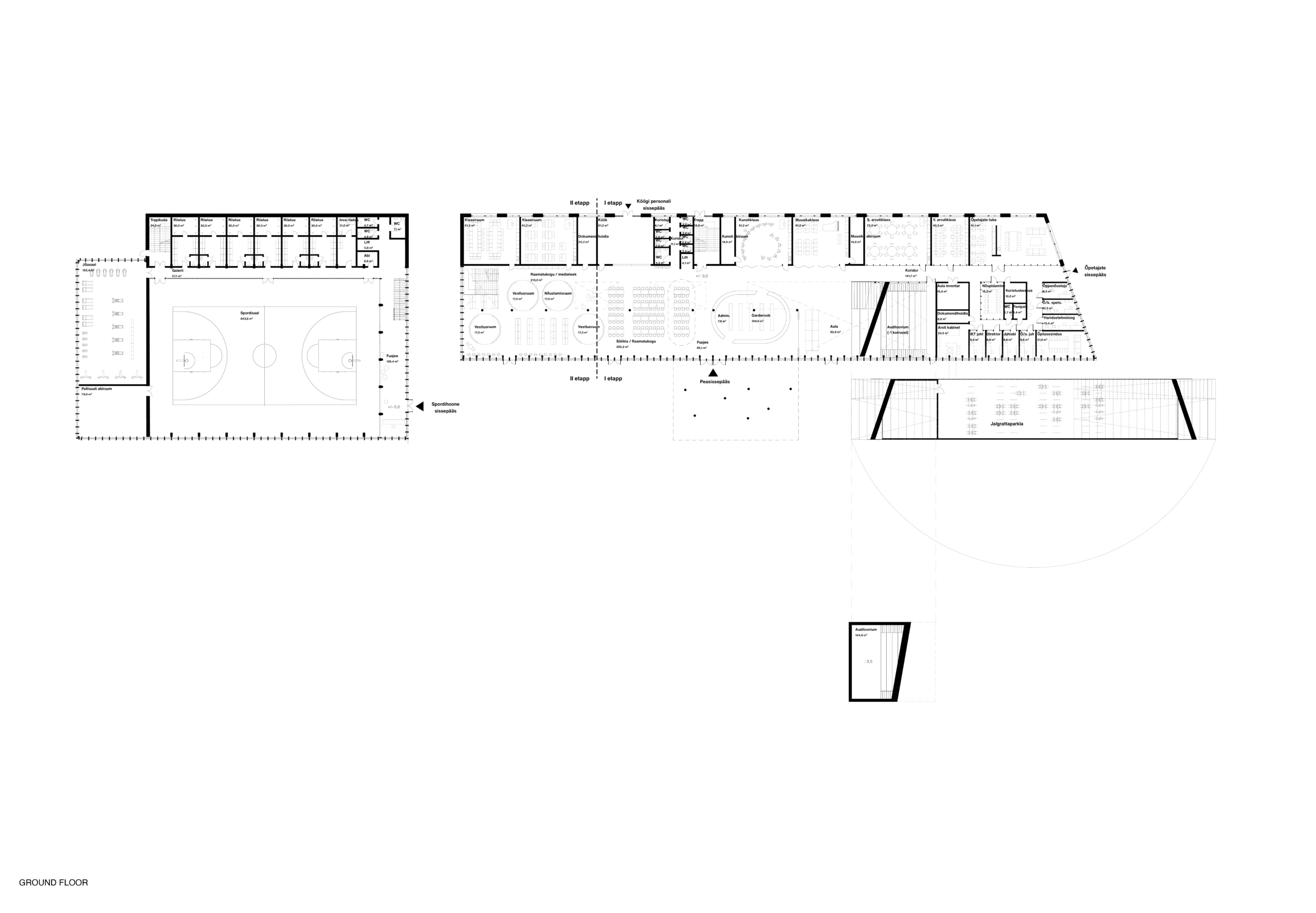
The new academic and sports buildings of Rae Upper Secondary School form a clear and compact educational campus where indoor and outdoor spaces work as a unified whole. The placement of the buildings links Lehmja oak grove, the stone burial site and the new school park into a single green belt that shields the school from traffic noise and opens the outdoor areas to the southern and evening sun. The diverse schoolyard, forum and flag square are designed for outdoor learning, everyday breaks as well as ceremonial events.
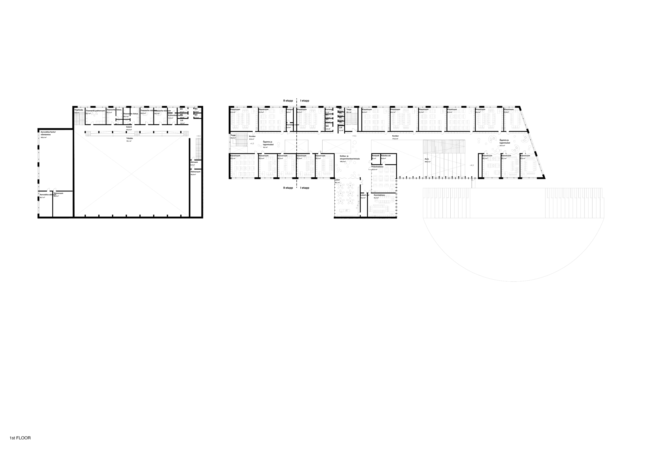
The ground floor of the school functions as a community level: the assembly hall, cafeteria, library, art and music rooms open directly to the outside, allowing teaching, leisure and community activities to intertwine. On the upper learning floor, classrooms, laboratories and open study areas have quick access to both the forum and the outdoor spaces. The sports hall, outdoor gym and play areas support physical activity and enable an active school day.
The building is designed as a nearly zero-energy structure, with timber preferred in the construction and roofs prepared for solar panels. The result is a contemporary, environmentally conscious and movement-oriented school environment that is also open to the wider Rae municipality community.












