Rae Municipal Building
2023 /III prize/ 4554 m2
Category: Public,
Authors: Gert Guriev, Markus Kaasik, Helin Kuldkepp, Karl Erik Miller, Siim Tiisvelt, Imar Valdur
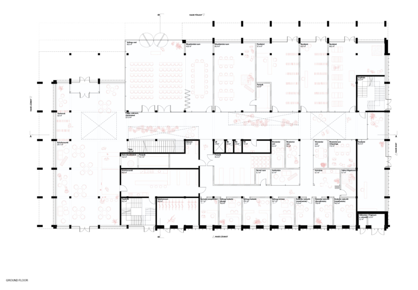
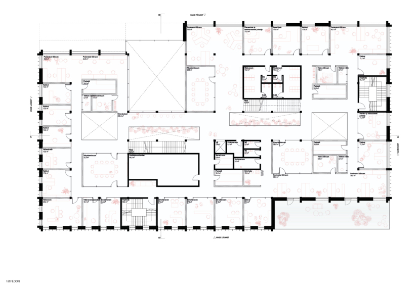
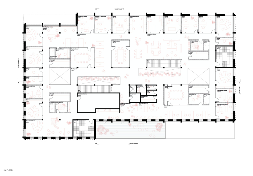
PAJUOKS is the competition entry for the new Rae municipal building – a timber structure that values flexibility and openness, bringing together the town hall, central square and surrounding public space into one coherent whole. Its clear and transparent structure allows the interior to be reorganised over time according to the municipality’s changing needs – like a willow branch that bends but does not break. At the heart of the building is an internal “street” spanning three floors, gathering the council hall, public service area, rental spaces and contemporary work environment.
The squares opening to the front and back of the building create a human-scale public space with a variety of activities: a café terrace, planted seating steps, play and swing areas, meadow-style planting beds, water features and a new skatepark together form a place that is equally suited for stopping, meeting or simply passing through. Pedestrian and cyclist movement is prioritised, while car traffic is directed to a buffer car park on the neighbouring plot.
The building is designed as a near-zero-energy timber structure: a glulam post-and-beam frame, CLT floor slabs, energy-efficient windows, carefully considered solar shading and rooftop PV panels ensure low energy use and a high-quality indoor climate. The timber façade and generous glazing give the town hall a warm, contemporary character that reflects principles of openness, transparency and community-oriented placemaking.





















