Martsa Community School
2025 /Encouragement prize/ 11275 m2
Category: Education, Public,Concept
Authors: Gert Guriev, Lisette Eriste, Karin Harkmaa, Markus Kaasik, Annebritt Rell
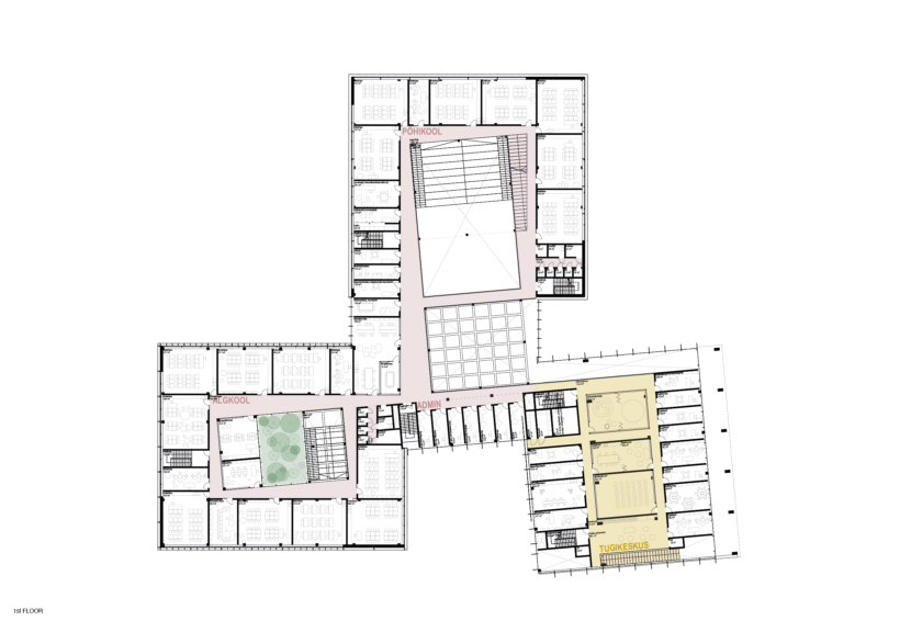
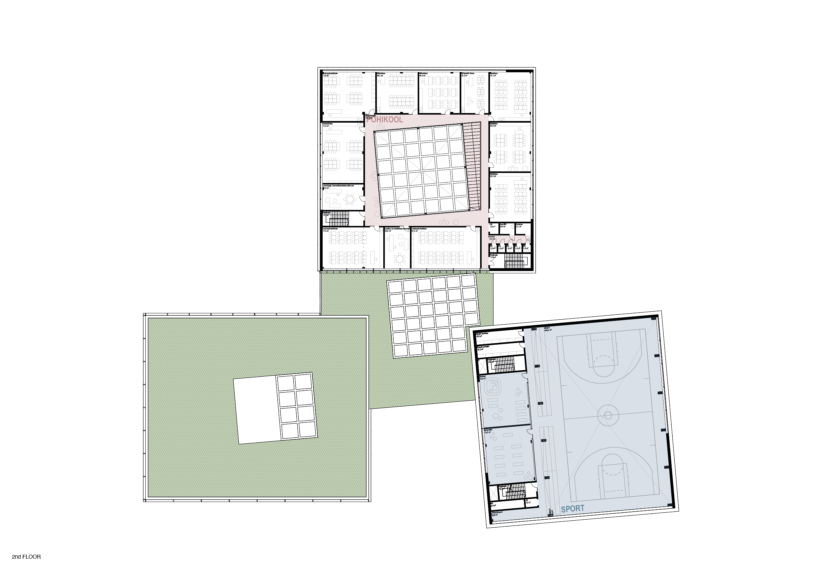
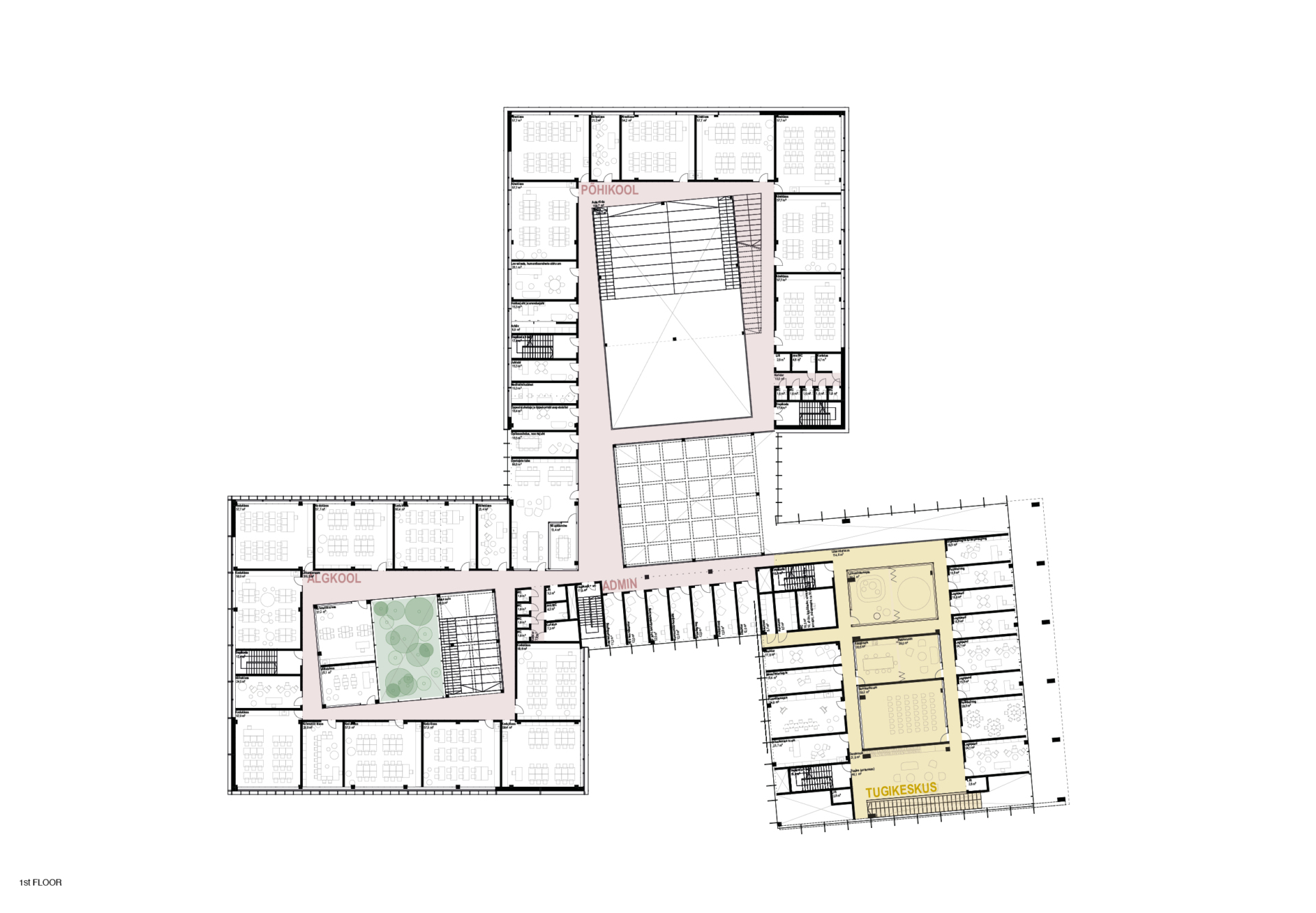
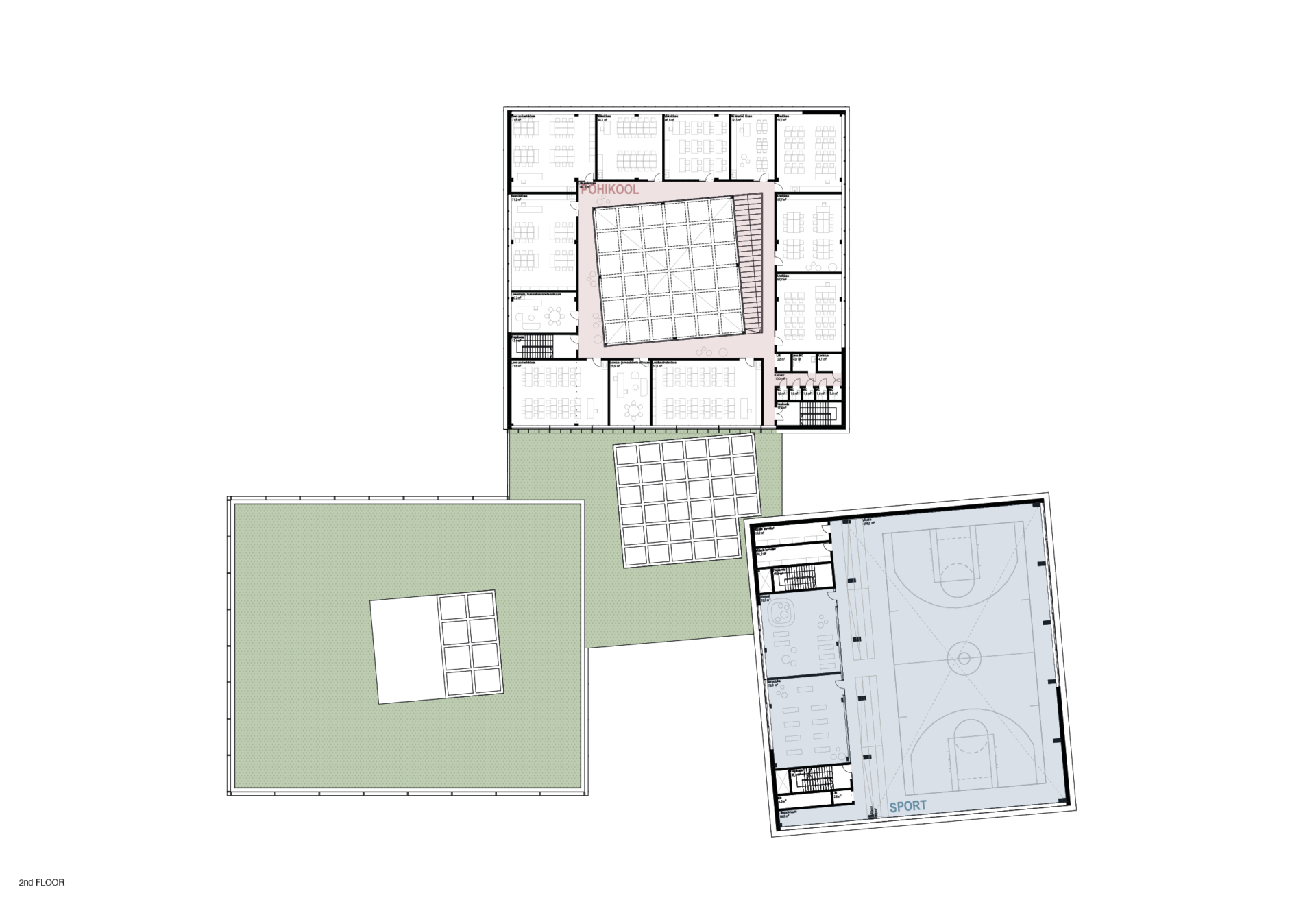
The urban fabric of Lasnamäe has been shaped by dozens of similar panel buildings – an architecture that speaks of efficiency, standardization, and repetition.
Yet within this monotone environment, there is an increasing need for places that connect people and foster a sense of community. Martsa Community School fills this void – a new social and spatial heart that unites a school, community center, library, and sports hall into one cohesive whole. Situated at the intersection of two urban structures, the building links the Loopealse and Katleri districts while creating a new public square oriented toward Narva Road. Sunlit courtyards, warm materials, and thoughtfully designed greenery bring a sense of humanity and joy to the environment. Martsa Community School is more than an educational space – it is a community landmark that brings light, movement, and a spirit of togetherness to the concrete landscape of Lasnamäe.





















