Krulli commercial and residential building
2025 / Competition entry/ 8791 m2
Category: Residential, Concept, Commercial
Authors: Gert Guriev, Lisette Eriste, Markus Kaasik, Sofya Smirnova
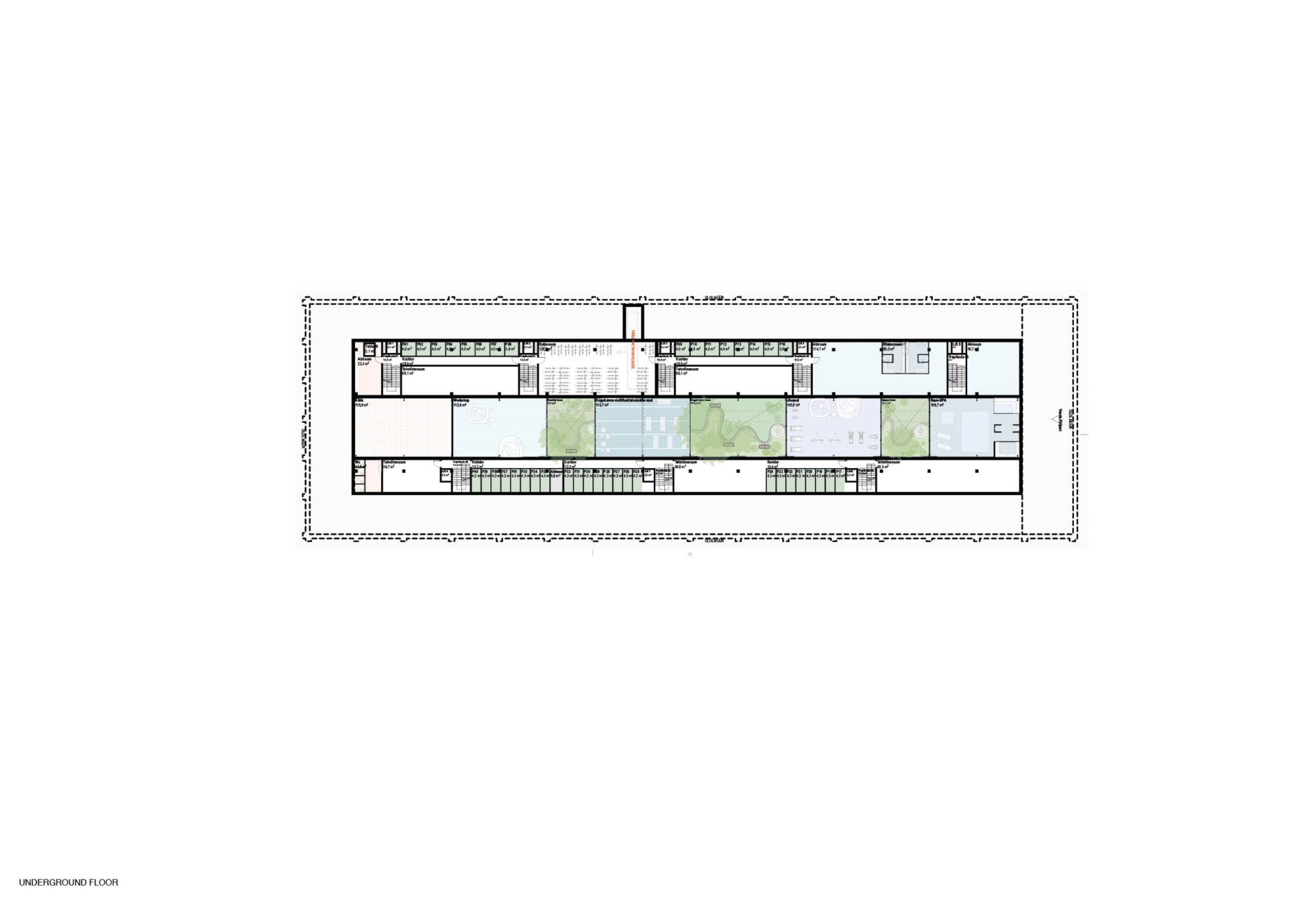
Rising in the evolving Krulli Quarter, the building combines public functions with diverse living options. The open ground floor spaces and the orangery create a link between urban life and greenery, offering both city apartments and more spacious urban villas.
The building is designed to be energy-efficient and environmentally friendly, using timber structures, passive solutions, natural ventilation, and integrated solar panels.






















