Haapsalu Primary School
2018 / I prize/ Completed 2020 / 6200 m2
Authors: Gert Guriev, Karin Harkmaa, Markus Kaasik, Kerstin Kivila, Mihkel Meriste, Siim Tiisvelt
Project team: 3+1 arhitektid (Karin Harkmaa, Markus Kaasik, Kerstin Kivila, Mari-Leen Lao, Siim Tiisvelt, Pirko Võmma
Interior architecture: Sees OÜ
Constructor: Nordlin Ehitus OÜ
Photos: Tõnu Tunnel
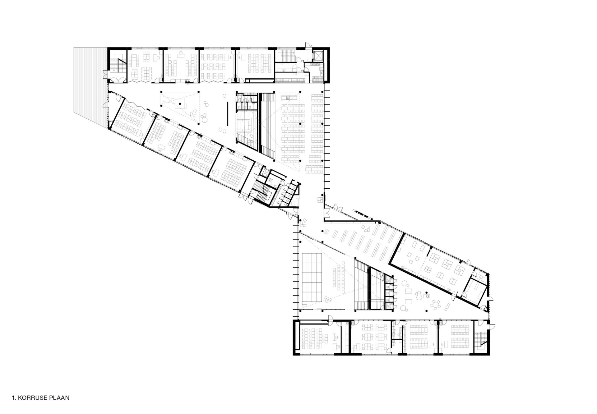
The bowtie-shaped school building is located within the Haapsalu sports and education complex, offering excellent accessibility from the surrounding residential area. The volumetric articulation of the building and the choice of materials respectfully integrate with the environment, acting as a link between the panel housing district and the neighborhood of single-family homes.
The building’s pronounced openings connect the school with the community, creating a strong relationship between outdoor and indoor spaces. The surrounding outdoor area is divided into various learning landscapes with distinct characteristics.
The new building is a modern structure designed to accommodate the evolving concepts of education.


































