Estonian Academy of Security Sciences
2017/ Completed 2020 / 11 900 m2
Authors: Gert Guriev, Markus Kaasik, Kerstin Kivila, Mihkel Meriste, Siim Tiisvelt, Pirko Võmma
Interior architecture: T43 sisearhitektid
Landscape arhitecture: Tajuruum
Constructor: Nordecon
Awards: Architecture Endowment Annual Prize 2020
Photos: Tõnu Tunnel
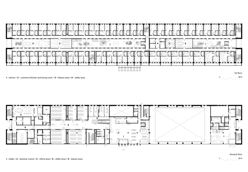
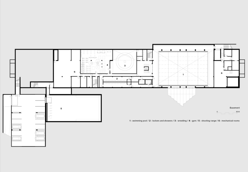
The Estonian Academy of Security Sciences Narva Study Building aligns with the established urban structure in its volume and placement. The building’s exterior is calm and environmentally sensitive. The outdoor spaces are divided with stepped levels, revealing or concealing the building’s functions in a way that makes the public foyers and swimming pool visible from the street, while the shooting range and enclosed parking area are hidden within the landscape.The first and basement levels (-1) house spaces for both public and semi-public use, including seminar rooms, a café, a sports center, and a shooting range. The second, third, and fourth floors are designated for accommodation. The living quarters are positioned along two sides of the building, creating a shared atrium space between them.The Estonian Academy of Security Sciences is an example of innovative use of wood in the building’s load-bearing structure, featuring cross-laminated timber (CLT) walls and ceilings spanning three floors.






































