Apartment buildings in the Noblessner Quarter
2024 / Competition entry/ 17 620 m2
Category: Residential, Commercial, Concept
Authors: Gert Guriev, Paulina Jaakson, Karl Erik Miller, Ilmar Valdur
Landscape Architecture: Tajuruum OÜ (Margit Prükk, Kärt Reedi)
The competition entry KÄIL designs two clearly legible “mini-blocks” along the Noblessner quay, with semi-private courtyards between them and a public space that wraps around the sea, the slipway and the promenade. The buildings’ dynamic form – strong cantilevers, angular balconies and the interplay of timber and light metal – relates both to the historic submarine factory’s industrial landscape and to the expectations for contemporary waterfront living.
The outdoor space concept highlights Noblessner’s historic layers: the slipway, tracks and beacon tower are preserved, and around them a greened promenade encouraging walking and cycling is created. A sheltered area is planned in the middle of the slipway for sitting and spending time, while the track-lined ramp becomes a platform for enjoying views and sunsets.
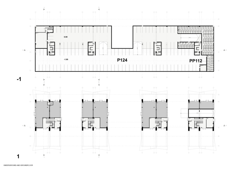
The apartment layouts are clear and rational, with as many homes as possible benefiting from sea views; all have a balcony or terrace. An underground car park, bicycle storage and well-considered logistics allow the ground level to be reserved for people, greenery and an engaging urban experience by the sea.

















