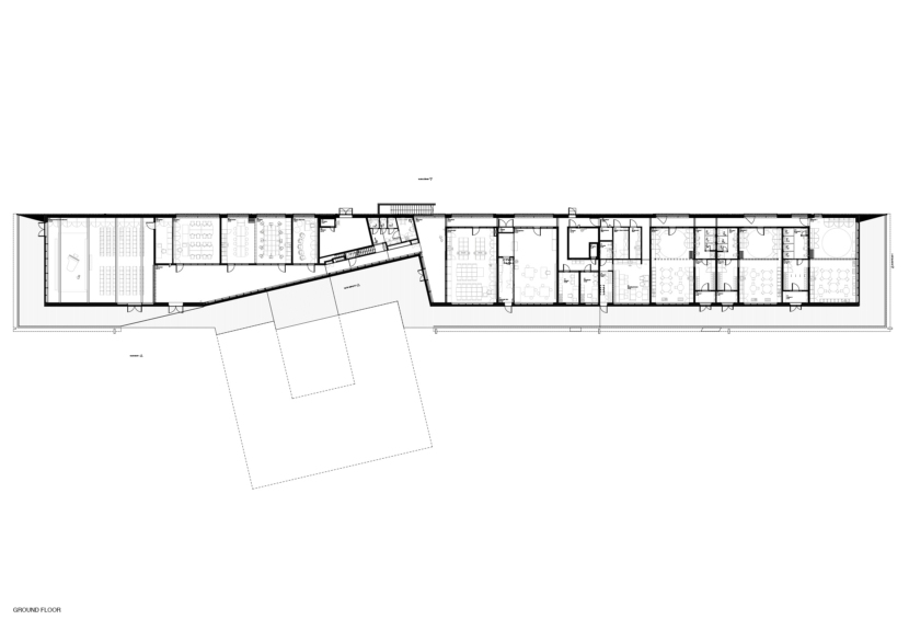
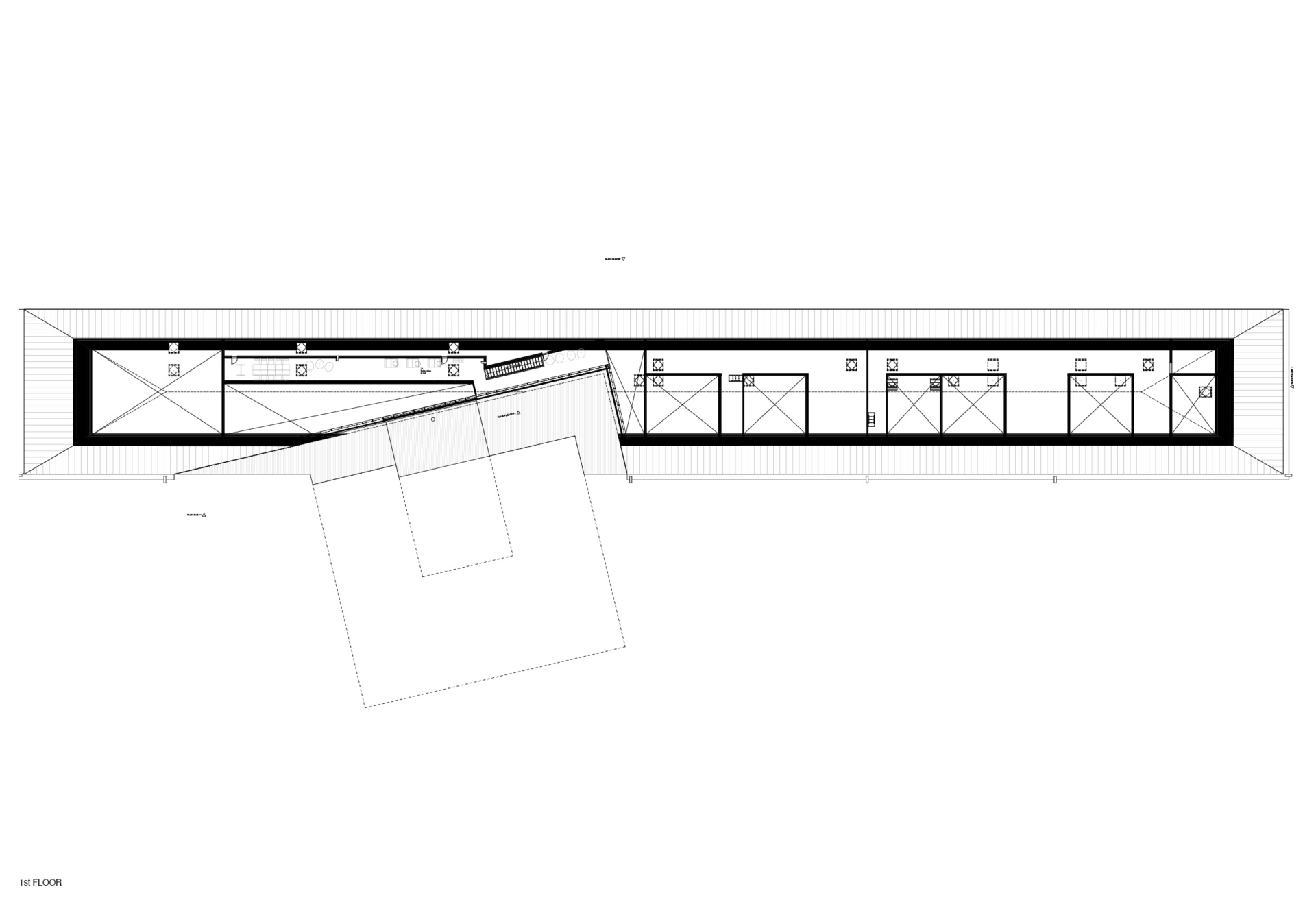
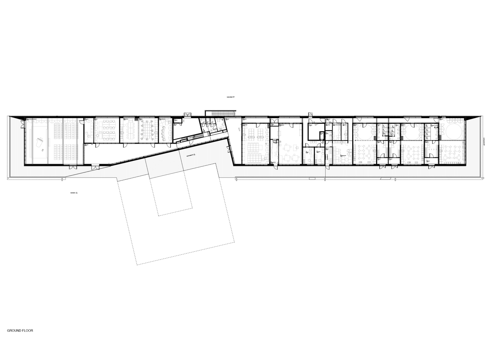
Võsu Primary School and Kindergarten Building phase I
2019 / I prize/ 1st phase completed 2025/ 1753 m2
Authors: Gert Guriev, Karin Harkmaa, Markus Kaasik, Kerstin Kivila, Helina Lass, Siim Tiisvelt
Project team: 3+1 arhitektid (Karin Harkmaa, Markus Kaasik, Jana Pärn)
Interior architecture: Kaidi Org
Landscape architecture: Punktiir OÜ
Constructor: Enska ehitus OÜ
Photo: Karl Kasepõld
Awards: Estonian Timber Building of the Year 2025; Thermory Design Award 2025 in Residential, Commercial & Public Building category
Our goal was to create a new modern building which honours old schoolhouse constructed in 1932. The new building is inspired by the traditional Estonian barn house, which is very characteristical for this area. The school got a new modern learning environment combined with local community house.
































