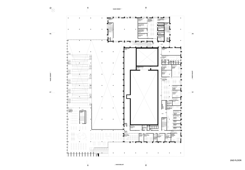
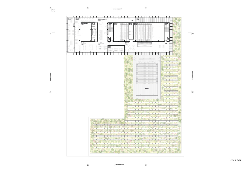
SIURU: Tartu Downtown Cultural Centre
2023 / In the planning process / I Prize / 36 800 m2
Category: Public
Authors: Lisette Eriste, Gert Guriev, Markus Kaasik, Helin Kuldkepp, Karl-Erik Miller, Jana Pärn, Siim Tiisvelt, Imar Valdur
Project team: 3+1 arhitektid (Gert Guriev, Markus Kaasik, Jana Pärn, Sofya Smirnova, Siim Tiisvelt)
Interior architecture: Stuudios 2023 sisearhitektid (Ahti Grünberg, Mariliis Sõber)
Landscape architecture: 3+1 arhitektid & KINO maastikuarhitektid
Proposal for a Downtown Cultural Centre in Tartu. The proposed design is derived from the surrounding environment, through which we create a holistic building. The cultural center is like a landscape object that blends into the surrounding nature, while also leaving a strong enough mark on the city’s architecture. Depending on the functions, we see how the side facing the river is higher and more representative, while the side facing the park is more pavilion-like.






















