Pärnu Lootsi 10 apartment building
2025 / Invited Architectural Competition/ 3147 m2
Category: Residential, Concept
Authors: Gert Guriev, Markus Kaasik, Annebritt Rell
The architecture is designed in harmony with the site’s landscape and the riverside character of Pärnu. The building is raised above street level to reduce flood risk, and the broad staircase in front functions both as a comfortable access route and as a public seating area – a natural extension of the building’s stepped form.
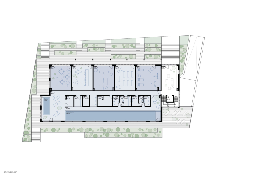
A dynamic character is created by balconies on three sides – partly cantilevered, partly supported by columns – together with the stepped façade. The balconies cascade down floor by floor towards the southwest–west, capturing the evening sun and resonating with Pärnu’s seaside and riverside atmosphere. Views open southeast towards the moat and Old Town, and northwest towards the Pärnu River and the setting sun. Ground-floor commercial spaces and the main entrance face both Lootsi Street and the river, while the courtyard side accommodates a spa and pool area with a sun terrace. Parking is entirely underground, leaving the ground level free for the courtyard and a terrace that connects to the surrounding urban fabric.
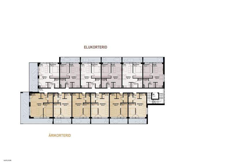
The apartment building is conceived as a single, efficient volume that opens as much as possible to the key views. The layout minimises living rooms and balconies facing neighbouring buildings, while ensuring good orientation to daytime and evening sun. The largest apartments face the river and the sun, with generous cascading terraces. Every apartment has a balcony or terrace, with the option of glazing.
The façade is finished with timeless clinker brick and naturally oiled timber cladding on the balconies, complemented by dark balcony railings and window frames. Together, these materials create an elegant yet calm composition that fits seamlessly into Pärnu’s urban and natural context. The roof is designed to accommodate up to 150 kW of solar panels, supporting compliance with contemporary energy efficiency requirements.
The surrounding landscape is designed as a semi-public, high-quality living environment that makes use of the elevated ground created by flood protection. Towards Lootsi Street, stepped seating, terraces and planting beds create a green, welcoming frontage; on the other sides, terraces and planters extend the landscape around the building. With parking moved underground, the entire ground level of the plot is reserved for the building and its green outdoor areas. Planting areas with trees, shrubs and perennials of varying heights create a dynamic outdoor space that supports a natural environment. Planters around the ground-floor terraces form a private buffer between walkways and terraces, while the overall landscaping helps extend the quality of Pärnu’s riverside public space.
















