Concept for the Maarjavälja Green Area
2022 / II prize / 28 363 m2
Category: Planning, Public, Concept, Infrastructure
Authors: Ilmar Valdur, Anne Vingisar
Landscape Architecture: Tajuruum OÜ (Johannes Madis Aasmäe, Terje Ong, Hannes Aava)
Archipelago reimagines Maarjavälja as the green heart of the University of Tartu’s future campus – a flexible park of tomorrow that grows together with the university, students and research. The currently diffuse open lawn is transformed into a clearly structured archipelago: within the avenue of trees appear smaller “plots of land” that provide space for outdoor learning, research, recreation and community events. Along the edge of the park, a multi-layered “green wall” separates the area from surrounding buildings and car parks, increasing biodiversity and creating a calmer atmosphere for spending time in the park.
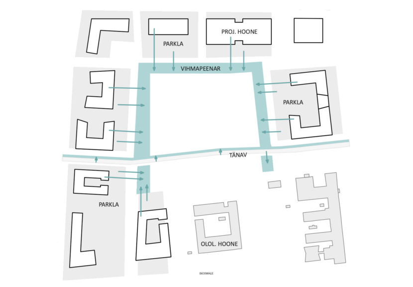
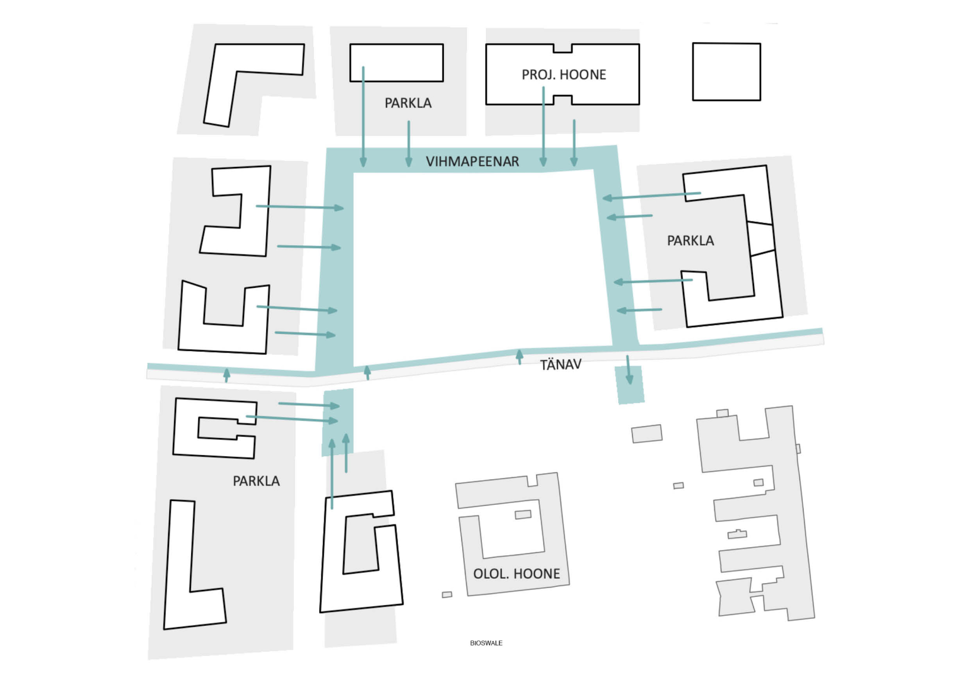
The park of the future is at the same time a testing ground for contemporary nature-based solutions. Rain gardens and floodable areas along the connecting zone collect and filter stormwater, while a fast-growing Miyawaki-style forest creates biodiversity corridors, and a “test street” allows different street-greening models to be tried out. At the heart of the park, organically shaped pavilions and outdoor classrooms provide places for lectures, workshops, open-air training and informal encounters.
The Archipelago concept supports an energy-smart campus: one part of the park is planned as a solar park classroom, where people can both spend time and study energy production beneath the panels; in the connecting zone, canopies with integrated solar panels screen car parks and improve the microclimate. In this way, Maarjavälja becomes a living, changing, learning-oriented landscape where science, everyday life and nature are closely interwoven.


















