Hiiumaa Sports Center
2018 / Competition entry/ 6800 m2
Authors: Gert Guriev, Markus Kaasik, Mari-Leen Lao, Hanna-Liisa Mõtus, Siim Tiisvelt
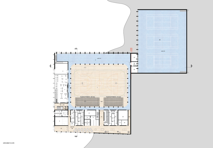
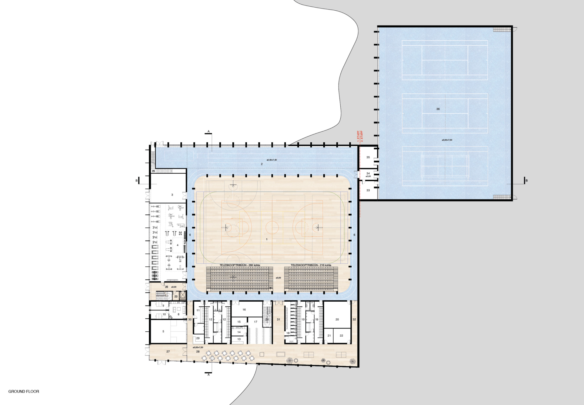
The new Hiiumaa Sports Centre brings a human-scale, playful and health-focused environment to the Kärdla apartment district. The building opens towards Põllu Street with a large glass façade, inviting residents and visitors alike to exercise, spend time together and enjoy events.
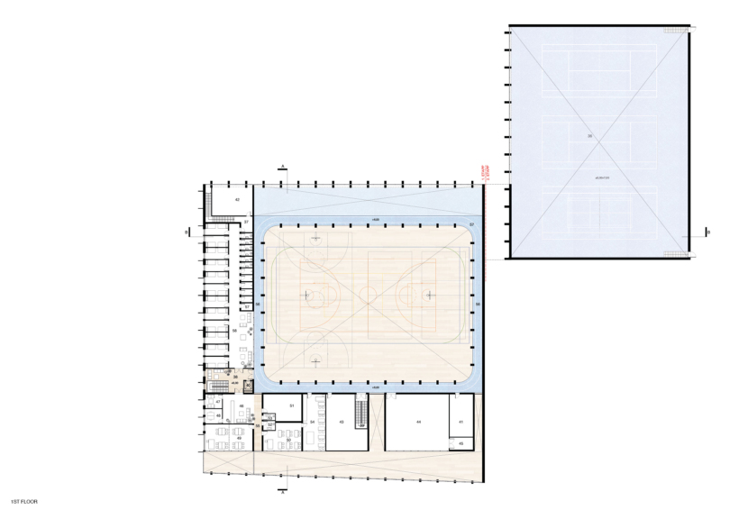
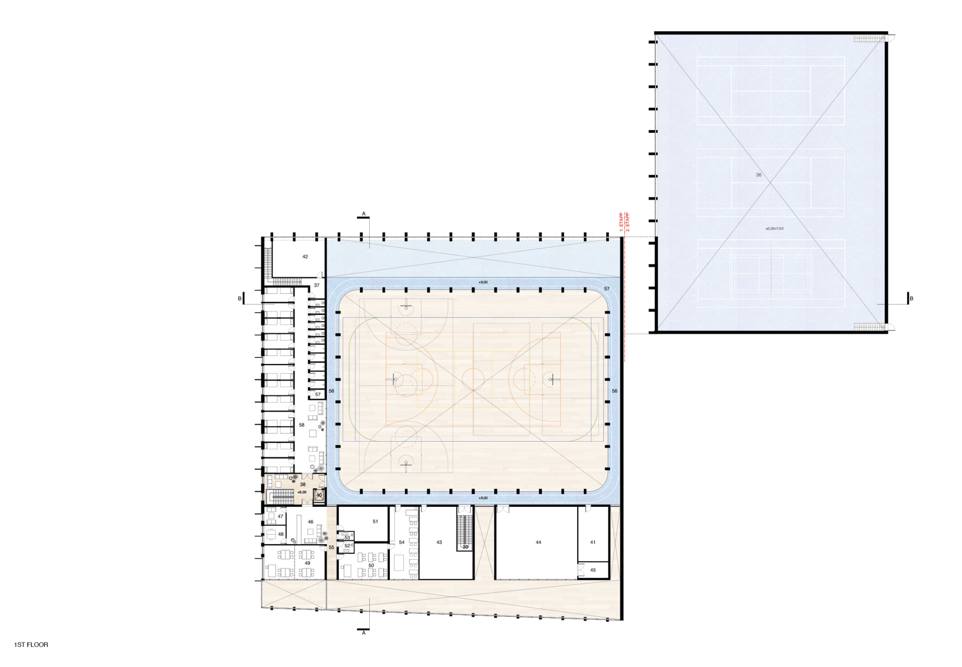
The complex consists of two main volumes – the sports hall and the tennis hall – connected by an underground gallery. Around them run jogging tracks, playgrounds, ball courts, an outdoor gym, skatepark, and picnic and seating areas. Inside, the building is unified by a “floating” glued-laminated timber waffle ceiling, beneath which are a bright main arena with an athletics area, ball game halls, a gym, group training rooms, as well as a youth centre and sports accommodation.
The architecture relies on natural wood and energy-efficient solutions – large rooflights, solar panels and carefully designed sun shading ensure a light-filled yet economical building. The Hiiumaa Sports Centre is conceived as the heart of the community, working equally well as a school and training facility, a competition venue and a welcoming place for leisure.











